XLarge Condo

Specifications
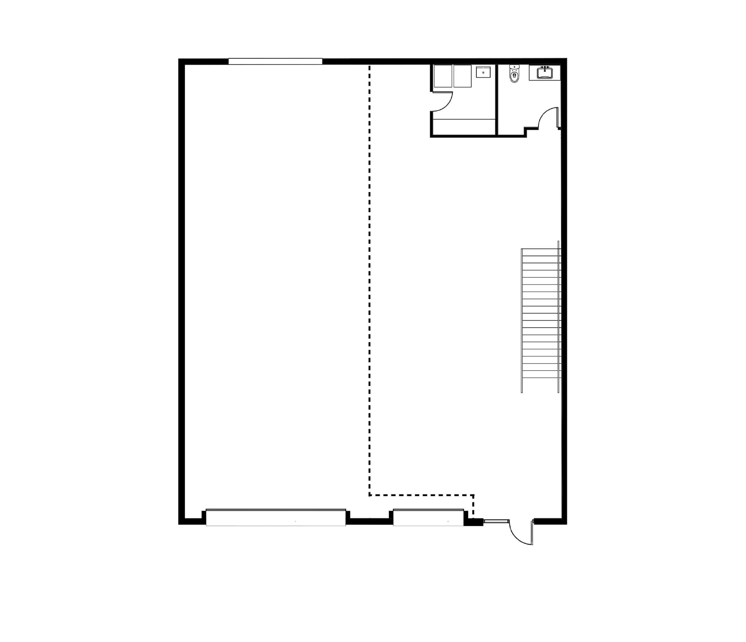
The XL unit offers approximately 4,500 sq. ft. of total space, including a 3,000 sq. ft. ground-level garage with 20’+ double-height ceilings and capacity for 16-18 vehicles. The fully insulated, HVAC-equipped space features a high-load concrete slab, full utilities, and a large glass and metal roll-up door. Above, a 1,500 sq. ft. loft-style mezzanine provides flexible space ideal for a kitchen, bathroom, office, or lounge
DETAILS
- Overall Footprint (approx.)4,500 sq.ft
- Garage Area (approx.)3,000 sq.ft
- Loft Area (approx.)1,500 sq.ft
- Vehicle Capacity16-18 cars
- Garage DoorOne 18' x 18' and one 10' x 10' glass and metal roll-up doors
- Ceiling Height20+ with double-height clearance
- FlooringHigh-load concrete slab
- Climate ControlFully insulated ceiling & exterior walls, equipped w/two HVAC units
- Utilities225 amp 3-phase power panel, sprinkler system, water and sewer

DETAILS
- Overall Footprint (approx.)4,500 sq.ft
- Garage Area (approx.)3,000 sq.ft
- Loft Area (approx.)1,500 sq.ft
- Vehicle Capacity16-18 cars
- Garage DoorOne 18' x 18' and one 10' x 10' glass and metal roll-up doors
- Ceiling Height20+ with double-height clearance
- FlooringHigh-load concrete slab
- Climate ControlFully insulated ceiling & exterior walls, equipped w/two HVAC units
- Utilities225 amp 3-phase power panel, sprinkler system, water and sewer

Unit Gallery

Limited Ownership. Private Access.
With only a select number of condos remaining, now is the time to secure your place in Austin's most exclusive automotive community. Join fellow enthusiasts who live where passion meets the track.












