Large+ Condo

Specifications
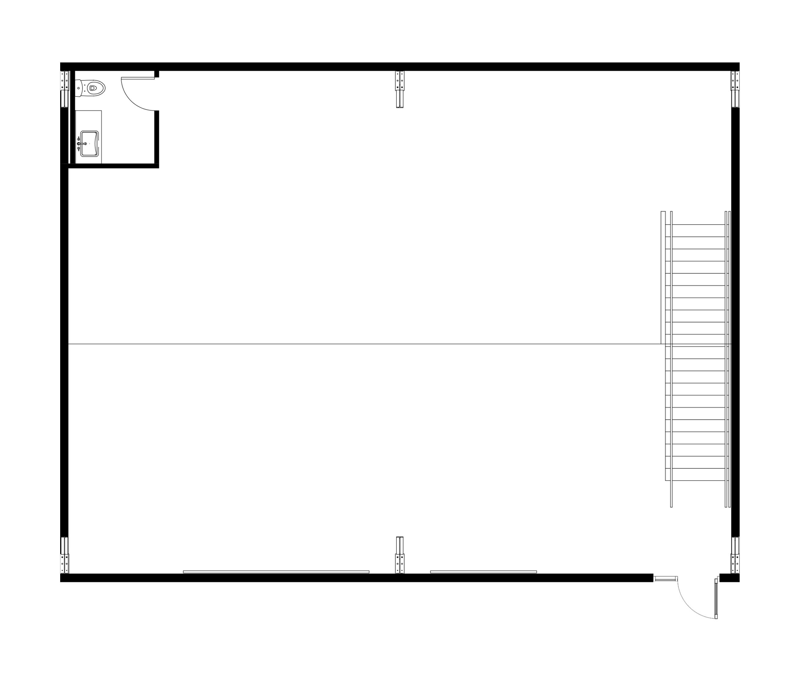
The Large+ unit offers approximately 3,000 sq. ft. of total space, including a 2,000 sq. ft. ground-level garage with 20’+ double-height ceilings and capacity for 8-10 vehicles. The fully insulated, HVAC-equipped space features a high-load concrete slab, full utilities, and two large glass and metal roll-up door. Above, a 1,000 sq. ft. loft-style mezzanine provides flexible space ideal for a kitchen, bathroom, office, or lounge
DETAILS
- Overall Footprint (approx.)3,000 sq.ft
- Garage Area (approx.)2,000 sq.ft
- Loft Area (approx.)1,000 sq.ft
- Vehicle Capacity8-10 cars
- Garage DoorTwo 14' W x 18' H glass and metal roll-up doors
- Ceiling Height20+ with double-height clearance
- FlooringHigh-load concrete slab
- Climate ControlFully insulated ceiling & exterior walls, equipped w/two HVAC units
- Utilities225 amp 3-phase power panel, sprinkler system, water and sewer

DETAILS
- Overall Footprint (approx.)3,000 sq.ft
- Garage Area (approx.)2,000 sq.ft
- Loft Area (approx.)1,000 sq.ft
- Vehicle Capacity8-10 cars
- Garage DoorTwo 14' W x 18' H glass and metal roll-up doors
- Ceiling Height20+ with double-height clearance
- FlooringHigh-load concrete slab
- Climate ControlFully insulated ceiling & exterior walls, equipped w/two HVAC units
- Utilities225 amp 3-phase power panel, sprinkler system, water and sewer

Unit Gallery

Limited Ownership. Private Access.
With only a select number of condos remaining, now is the time to secure your place in Austin's most exclusive automotive community. Join fellow enthusiasts who live where passion meets the track.








